concevoir et dessiner des convoyeurs à bande

concevoir et dessiner différents types de convoyeurs à bande dans les entreprises pétrochimiques, les cimenteries, les usines d'acier, les usines de céréales, les mines, le sucre, le blé, le gypse, le minerai de fer, les granulés, l'asphalte, le solt, le pétrole et . . .

Conception de tous types de convoyeurs à bande, bandes à câbles d'acier, bandes de carcasse, convoyeurs à double entraînement, à grande vitesse, à vitesse variable, à haute tonalité, convoyeurs de plus d'un kilomètre

échantillon

conception et dessin : goulotte à deux voies, vanne coulissante, alimentateur rotatif, déviateur

utiliser un programme spécial pour les calculs

tour de tension, gravité horizontale

Dessin AutoCAD pour convoyeurs à vis

CV

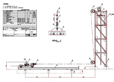
  • Rapport de conception de convoyeur à bande, conception de rouleaux de support de tête et de queue, support de tête, support de queue, rouleaux de retour
  • tendeur à vis, tendeur vertical, tendeur horizontal, poulie de renvoi, poulie de tête, poulie d'entraînement
  • poulie de queue, jupe, racleur interne, nettoyeur externe, moteur, boîte de vitesses
  • arbre et roulement pour poulie, vitesse des convoyeurs à bande, capacité et taille des convoyeurs à bande
  • rapport pour la conception de convoyeurs à vis, conception et dessin de convoyeur à vis, type de tuyau, type U, mélangeur, convoyeurs à palettes, calcul de la plaque hélicoïdale, motoréducteur, accouplement, arbre et tuyau, palier intermédiaire, boîtier de palier d'extrémité
  • concevoir et dessiner des convoyeurs à chaîne, des racleurs, avec une chaîne simple ou une chaîne double, des lames minces, des lames larges, des lames de surfaçage dur, des lames en téflon, un convoyeur à racleurs long, des convoyeurs à traînées larges
  • pignon de traction pour côté entraînement et côté arrière, système de tension avec ressort et roulement et boîtiers
  • conception d'une goulotte à deux voies, d'une porte coulissante, d'un alimentateur rotatif, d'une porte à ergots, d'une porte à clapet, d'une porte à tiges, d'une goulotte entre les équipements
  • déplacer et faire pivoter tous types de portails : manuels, motorisés, à vis, à crémaillère, pneumatiques, à vérin hydraulique, à motoréducteur, à boîte de vitesses et . . .

convoyeur calculer et dessiner

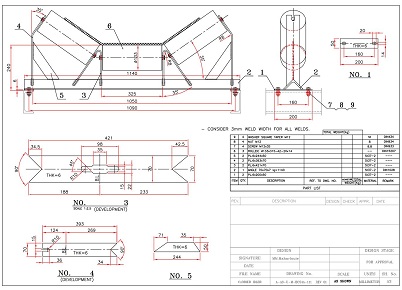
dessin d'assemblage du galet tendeur du support de courroie

Calcul de la largeur de la bande en fonction de la densité et de la vitesse

mots clés

Contact Us
kiln_correct (msajco.com)

-

  • Mobile +989177120715
  • Contact Us
    Contact us